Negozio in affitto

Conegliano, Via XX Settembre
Informazioni in agenzia
2 locali 2 locali
65 Mq 65 Mq
1 bagno 1 bagno

Negozio in affitto

Conegliano, Via XX Settembre

Descrizione annuncio

CONEGLIANO CENTRO STORICO!

Nel cuore del centro storico di Conegliano, sotto gli eleganti portici di una delle vie più prestigiose e frequentate, proponiamo un immobile di assoluto pregio.

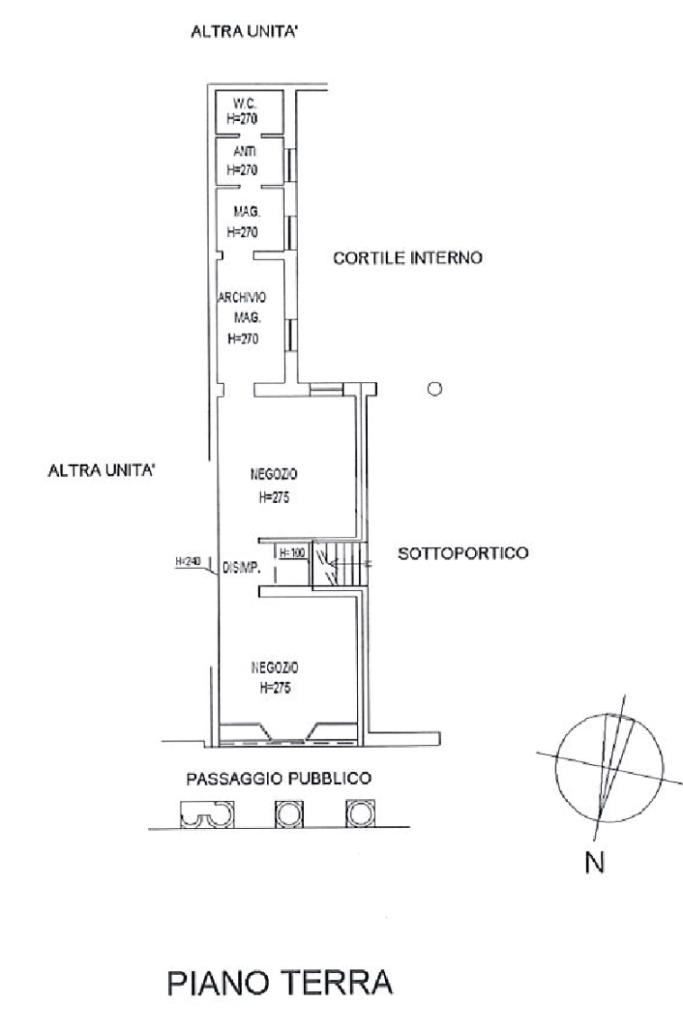
La proprietà, di circa 65mq, è stata recentemente ristrutturata con grande attenzione, riuscendo a combinare modernità e fascino storico. Gli interventi hanno valorizzato lo stile tipico dei negozi del centro, mantenendo un’atmosfera autentica e accogliente.

L’immobile si sviluppa in lunghezza ed è composto da due ampi ambienti principali, ideali per esposizione e accoglienza clienti, oltre ad antibagno e bagno. La grande vetrina frontale garantisce eccellente visibilità e luminosità, rendendo lo spazio perfetto per attività commerciali o professionali che desiderano distinguersi.
Completano la proprietà un efficiente impianto di aria condizionata e riscaldamento tramite pompa di calore, tenendolo cosi accogliente in ogni stagione.

Le finiture di alta qualità e la posizione strategica, in un contesto ricco di storia e caratterizzato da forte passaggio pedonale, completano una proposta unica nel suo genere.

Un’opportunità esclusiva per chi cerca un immobile in una delle zone più ambite della città.

Alcune immagini presenti nell’annuncio sono rendering a scopo puramente illustrativo, realizzati per offrire un’idea delle potenzialità e di come l’immobile potrebbe essere valorizzato.

Per ulteriori informazioni contattateci in agenzia e seguiteci anche su Facebook, cliccando 'mi piace' sulla pagina 'Agenzia Tecnocasa Conegliano'

Scaricate gratuitamente l'app Tecnocasa sul vostro smartphone e sarete sempre aggiornati sulle nostre proposte di vendita.

Mostra tutto

Nelle vicinanze

Trasporto pubblico Trasporto pubblico
stazione di Conegliano
stazione di Conegliano
240 m
Conegliano FS
Conegliano FS
210 m
Trasporto pubblico
220 m
Ricariche auto elettriche Ricariche auto elettriche
Comune di Conegliano TV
1,2 Km
Comune di Conegliano TV
1,4 Km
Cittadella dello sport
2,6 Km
Scuole Scuole
Scuola Primaria San Francesco
130 m
IPSIA I. Pittoni
350 m
Collegio Immacolata
560 m
Scuola elementare Giovanni Pascoli
600 m
Scuole
640 m
Farmacia Farmacia
Farmacia Marson
50 m
Farmacia Dottor Losego
410 m
Farmacia Carli
670 m
Farmacia Dottor Fiorenzato
720 m
Parafarmacia
1,0 Km
Ospedali Ospedali
Obitorio
720 m
Pronto Soccorso Ospedale Conegliano
780 m
Presidio Ospedaliero di Conegliano
810 m
Presidio Ospedaliero "De Gironcoli"
960 m
Distretto Socio Sanitario Conegliano
1,3 Km
Supermercati Supermercati
Supermercato DESPAR
180 m
Supermercato Schlecker
210 m
Supermercati
690 m
Eat’s
790 m
EURO Spin
960 m
Negozi Negozi
Max & Co.
110 m
Abbigliamento BAGATO
150 m
La Bottega del Mondo
160 m
Abbigliamento bambini
170 m
Abbigliamento PORTA LEONE
190 m
Bar Bar
Centrale
40 m
Bar Underground
60 m
Bar
80 m
Bar GARAGE
90 m
Bar Carducci
100 m
Ristoranti Ristoranti
Trattoria ALLA STELLA
60 m
Ostaria Cima
70 m
Trattoria Città di Venezia
110 m
Ristorante SALISA'
160 m
Ristorante A CASA DE GIORGIO
230 m
Mostra tutto

Caratteristiche

Rif.:
61198281
Piano:
Terra di 2
Totale piani:
2
Posti auto:
3
Condizionamento:
Autonomo
Ascensore:
No
Mostra tutto
Prezzo Prezzo
Informazioni in agenzia
Spese annue Spese annue
€ 0

Classe Energetica

Questo immobile è esente da classe energetica
Anno di costruzione:
1900
Riscaldamento:
Autonomo
Tipo impianto:
Ad aria
Tipo alimentazione:
Aria

Ti interessa visionare l'immobile?

Fissa un appuntamento  Fissa un appuntamento

Richiedi informazioni

Clicca su Leggi per aprire l'informativa
* Questi campi sono obbligatori
Affiliato
Studio Conegliano Srl
Prossima Apertura, 31015 Conegliano (TV)

Il nostro staff


  • David Cenedese
    Collaboratore

  • Edoardo Maria Cunzo
    Responsabile

  • Lara Dal Bianco
    Affiliata

  • Anna Papes
    Collaboratrice

  • Alice Gava
    Affiliata
Prossima Apertura, 31015 Conegliano (TV)
Zona: Conegliano - Provincia Nord di Treviso
Mostra su mappa
Affiliato
Studio Conegliano Srl
Prossima Apertura, 31015 Conegliano (TV)

2026 Tecnocasa Franchising S.p.A. - P. IVA 08365160152 - Via Monte Bianco 60/A 20089 Rozzano (MI). Ogni agenzia ha un proprio titolare ed è autonoma. Privacy policy | Policy utilizzo | Cookie policy