Negozio in vendita

Conegliano, Via caronelli
€ 55.000
2 locali 2 locali
53 Mq 53 Mq
1 bagno 1 bagno

Negozio in vendita

Conegliano, Via caronelli

Descrizione annuncio

CONEGLIANO!

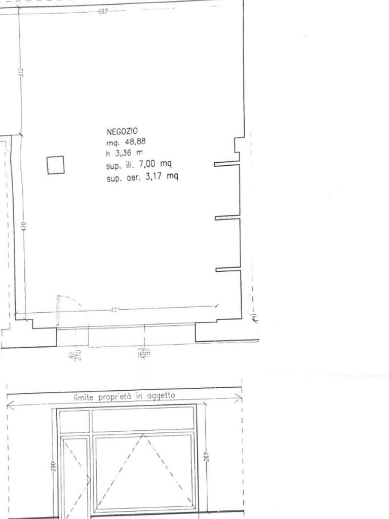
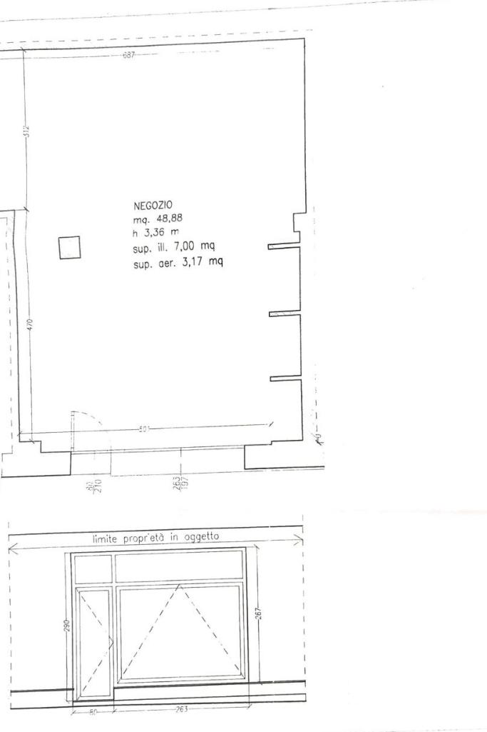
Nel cuore di Conegliano, in zona centrale e caratterizzata da intenso passaggio sia pedonale che veicolare, proponiamo in vendita un interessante negozio di 53 mq, ristrutturato nel 2024 e pronto per essere utilizzato fin da subito.

L’immobile si presenta in ottime condizioni ed è composto da un ampio locale principale open space, facilmente organizzabile e personalizzabile in base alle proprie esigenze, oltre a bagno e antibagno recentemente rifatti.

La ristrutturazione ha interessato in particolare il completo rifacimento del bagno e della pavimentazione, con finiture moderne che conferiscono allo spazio un aspetto curato, funzionale e contemporaneo.

La grande vetrata basculante fronte strada rappresenta uno dei punti di forza della proprietà: garantisce eccellente luminosità naturale durante tutta la giornata e offre massima visibilità, elemento fondamentale per qualsiasi attività commerciale o professionale.

La posizione centrale, inserita in un contesto dinamico e ben servito, assicura un costante flusso di potenziali clienti e un’elevata comodità per chi vi lavora o lo frequenta.

Particolarmente interessante è la possibilità di effettuare il cambio di destinazione d’uso, che consente di trasformare l’immobile in ufficio o garage, ampliando notevolmente le opportunità di utilizzo.

Questa versatilità lo rende una soluzione ideale sia per chi desidera avviare o trasferire la propria attività in una zona strategica, sia per chi è alla ricerca di un investimento solido in una delle aree più richieste di Conegliano.

Mostra tutto

Nelle vicinanze

Trasporto pubblico Trasporto pubblico
stazione di Conegliano
stazione di Conegliano
340 m
Conegliano Autostazione
Conegliano Autostazione
280 m
Conegliano FS
Conegliano FS
310 m
Ricariche auto elettriche Ricariche auto elettriche
Comune di Conegliano TV
1,3 Km
Comune di Conegliano TV
1,3 Km
Cittadella dello sport
2,7 Km
Scuole Scuole
Scuola Primaria San Francesco
250 m
IPSIA I. Pittoni
380 m
Scuola elementare Giovanni Pascoli
730 m
Collegio Immacolata
750 m
Scuole
780 m
Farmacia Farmacia
Farmacia Marson
150 m
Farmacia Dottor Losego
570 m
Farmacia Carli
840 m
Farmacia Dottor Fiorenzato
910 m
Parafarmacia
930 m
Ospedali Ospedali
Obitorio
540 m
Pronto Soccorso Ospedale Conegliano
620 m
Presidio Ospedaliero di Conegliano
640 m
Presidio Ospedaliero "De Gironcoli"
850 m
Distretto Socio Sanitario Conegliano
1,2 Km
Supermercati Supermercati
Supermercato DESPAR
90 m
Supermercato Schlecker
180 m
Eat’s
800 m
Supermercati
870 m
Interspar
960 m
Negozi Negozi
Abbigliamento PORTA LEONE
10 m
Alimentari
10 m
Abbigliamento BAGATO
40 m
Panificio
50 m
Abbigliamento bambini
230 m
Bar Bar
Bar da CIOTTAN'S
130 m
Bar Calvi
180 m
Centrale
200 m
Bar GARAGE
210 m
Caffè delle rose
210 m
Ristoranti Ristoranti
Ristorante SALISA'
30 m
Ristorante A CASA DE GIORGIO
40 m
Trattoria ALLA STELLA
180 m
Ostaria Cima
260 m
Trattoria Città di Venezia
290 m
Mostra tutto

Caratteristiche

Rif.:
61180255
Piano:
Terra
Posti auto:
6
Condizionamento:
Autonomo
Ascensore:
No
Riscaldamento:
Autonomo
Mostra tutto
Prezzo Prezzo
€ 55.000
Rata mutuo Rata mutuo
€ 261 / mese
Spese annue Spese annue
€ 300
Proponi il tuo prezzoProponi il tuo prezzo

Altre caratteristiche

Descrizione dei locali
Bagno Con Finestra

Classe Energetica

Questo immobile è esente da classe energetica
Anno di costruzione:
1980
Riscaldamento:
Autonomo
Tipo impianto:
Ad aria
Tipo alimentazione:
Aria

Ti interessa visionare l'immobile?

Fissa un appuntamento  Fissa un appuntamento

Richiedi informazioni

Clicca su Leggi per aprire l'informativa
* Questi campi sono obbligatori

Calcola il tuo mutuo

Semplice e senza impegno
Anticipo

( % )
Mutuo

( % )

pochi semplici passi

inserisci i tuoi dati
Questionario completato
Grazie per aver richiesto un appuntamento senza impegno con un nostro Consulente del Credito e Assicurativo.

Hai inserito correttamente tutti i dati necessari e a breve riceverai una e-mail con un link da convalidare per inviare i tuoi dati.
Affiliato
Studio Conegliano Srl
Prossima Apertura, 31015 Conegliano (TV)

Il nostro staff


  • David Cenedese
    Collaboratore

  • Edoardo Maria Cunzo
    Responsabile

  • Lara Dal Bianco
    Affiliata

  • Anna Papes
    Collaboratrice

  • Alice Gava
    Affiliata
Prossima Apertura, 31015 Conegliano (TV)
Zona: Conegliano - Provincia Nord di Treviso
Mostra su mappa
Affiliato
Studio Conegliano Srl
Prossima Apertura, 31015 Conegliano (TV)

2026 Tecnocasa Franchising S.p.A. - P. IVA 08365160152 - Via Monte Bianco 60/A 20089 Rozzano (MI). Ogni agenzia ha un proprio titolare ed è autonoma. Privacy policy | Policy utilizzo | Cookie policy